Sold

1/19 Laburnum CrescentNoosaville

SOLD

3 2 1

Huge Price Reduction For Immediate Sale

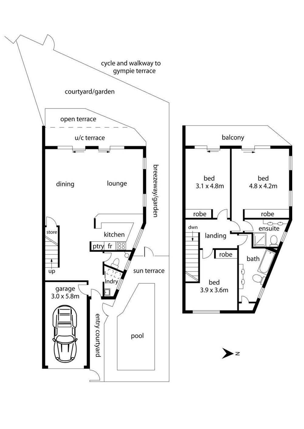
If living in a north westerly-facing attractive townhouse with a stylish Bahamas-inspired interior sounds enticing, how about a perfect, quiet and private location? The secure back gate opens to a walkway that follows the water to the restaurants of Gympie Terrace & foreshore of the Noosa River 150 metres away.

A tropical outdoor lifestyle, just a few metres from the water's edge, features a glass-fenced private pool and low maintenance sub-tropical gardens, a north facing terrace flowing from the living room provides spacious outdoor dining & entertaining.

The freshly renovated townhouse has coastal elements such as timber shutters and open plan living. The brand new kitchen includes white stone bench tops, soft closing cabinetry, ample storage & Miele appliances.

The powder room & laundry (also featuring Miele appliances) have been completely modernised too. There is even a study nook under the stairs.

The cool bright transformation continues upstairs. The substantial master bedroom featuring a stylish en-suite, has a long balcony overlooking Noosaville waterways.

An equally large second bedroom shares the same commanding views, and a family sized bathroom is shared with the third bedroom.

Entry to the secluded hideaway is via an electronic security gate.

"The townhouse is one in a small enclave of four in a prized location at the end of a cul-de-sac," explain Tom Offermann Real Estate agents Mal Cox and Cameron Urquhart.

This is a must-see, move-in-now townhouse, ideally suited as a prime holiday location or permanent residence.

Facts & Features:
Lock-up garage
North-facing pool and sun terrace
Split system aircon
Back-to-base alarm system
Small security-gated enclave
Low body corporate fees

Proudly Marketed by

Cameron Urquhart

0411 757 570 Email Me
Huge Price Reduction For Immediate Sale
1/19 Laburnum Crescent
Noosaville QLD 4566

Further Details

Address 1/19 Laburnum Crescent, Noosaville
Price SOLD
Property Type Residential
Property ID 2192
Category Unit