Sold

51 Tristania DriveMarcus Beach

SOLD FOR $7.425m

6 6 3 931 m2

Stupendous Lush Italian-Style Jewel on the Beachfront

When the stars align into five, and it's seconds to toes-in-the dazzling white sand, be in awe of a three-level contemporary masterpiece, perched sublimely in the front row with salty breezes and unrestricted 180 degree-plus Coral Sea views, on the largest highest site of Marcus Beach … and sigh.

Surrounded by the immense natural assets of Noosa National Park and five kilometres of dazzling white sand between Sunrise and Peregian, is Marcus Beach, regarded as an exclusive hidden utopia by the locals, rarely available and desired my many, especially those looking a stupendous jewel with lush Italian style.

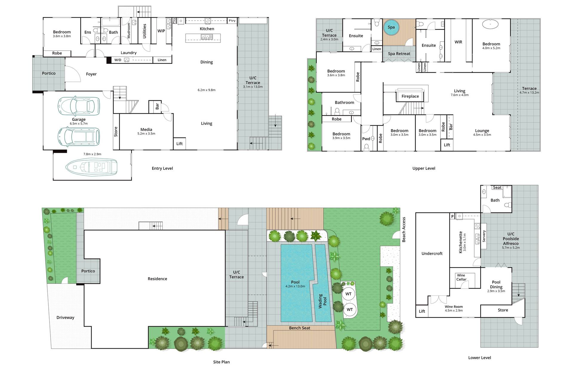
From the forecourt admire the façade, distinctive laser-cut screens, aluminium accents and beautiful hanging gardens, also statement potted greenery and custom pivot timber door with glass panel.

Step inside and be instantly besotted. There is a sense of indisputable splendour, fashioned with clever design responses, lofty-ceilings and European oak flooring which flows from the entry foyer and way beyond, to a vast open plan living area. Indoors becomes outdoors as the space extends in a transparent fashion, out to an entertaining terrace. It stretches the width of the residence and of course has those mesmerizing sea views, also the sound of waves breaking onto the foreshore.

Complementing the design of the entry level, is a custom kitchen and walk-in pantry with quantum quartz-topped charcoal-hued cabinetry including a long island/breakfast bar with a wealth of absolutely high-end appliances, also imported designer black pendants. Further along the hallway on the northern side are laundry, mud and utilities rooms, also a bedroom with built-in robes has an adjoining bathroom.

On the southside, a cinema has all the must-have installations such as an 85-inch latest generation television.

Take the lift or the stairs for next level luxe, privacy and breathtaking incomparable everything else including the north wing which is totally dedicated to serenity and relaxation. The sumptuous master bedroom opens out to the terrace, and has a free-standing oval bathtub to soak away the blues whilst drinking in those ravishing ocean views. And let's not forget about waking up to an amazing sunrise every morning. The double walk-in robe is every fashionista's dream, the ensuite bathroom has a double shower, separate toilet and bidet while the piece de resistance is a totally private spa retreat with hot tub, outdoor shower and auto Vergola with a rain sensor.

The second master style bedroom has an ensuite bathroom and terrace, and four bedrooms on the south and west sides, have built in robes and family bathroom.

Central to the upper level is a living space with a very generous fireplace, bar area and once again it opens to the terrace and has those eagle's eye views over the Coral Sea.

Vying for attention downstairs are numerous wonderful attributes. The back garden has direct access to toes-in-the-sand of Marcus Beach and there are two dazzling pools – wading for little kids and a much larger one for the those with a serious penchant for swimming. The surrounding terrace and covered private recreational area with auto close Vergola and Italian tiles, suggests more entertaining options especially as there's a small kitchen, barbeque, bathroom and the all-important refrigerated wine cellar and wine room for those who appreciate a fine vintage.

"What's not to love about a stunning and majestic oasis which totally connects to the spectacular location," comments Tom Offermann Real Estate agent Nic Hunter "also boasting unrestricted views of breaking waves in the Coral Sea and a breathtaking panorama extending north from Lions Headland in the Noosa National Park and south to the escarpment above Coolum. It is an exemplary residence designed with Italian flair and functionality where summery vibes linger year-round, and easy-going days are always high on the agenda. In the almost lost-world tradition of a safe, secure unrivalled lifestyle, here it's possible to lose yourself completely."

Facts & Features:
- Land Area: 931m2
- House Area; 622m2
- Pools: 4.2m x 13m + 13m wading pool
- About: Designer & Project Manager Alessia Capriccioli; Seachange Builders; full renovation completed in luxury Italian style 2023; beachfront; unrestricted 180 degrees+ ocean views; largest & highest block on Marcus Beach; 3-level permitted by council under old law; dble car garage + extra car/boat storage/gym w garden view; European Oak engineered timber flooring throughout; Shott lift; extra high ceilings; aircon/fans
- Entry level: kitchen w Smeg oven, induction cooktop & micro; integrated fridge & Miele dishwasher; zip tap; Quantum quartz New York palazzo marble topped 2-pac charcoal cabinetry incl 3.5m island/breakfast bar; imported designer black pendants; walk-in pantry w sinks; sea views; laundry w washer & dryer; mudroom w sink & storage; cinema room w 85-inch latest generation flat tv + home theatre speakers
- Upper-level: open plan living w fireplace, bar, terrace & 180-degree Coral Sea views; study/6th bedroom; north wing - master bedroom w free standing oval bathtub & extended ocean views; dble walk-in robe; ensuite bathroom w double shower; sep toilet & bidet space; 2nd master bedroom w ensuite bathroom + 2 dble bedrooms & 2 bathrooms + secluded terrace w hot tub spa bath & outdoor shower, auto Vergola w rain sensor
- Pool Level: incl terrace/covered private recreational area w auto close Vergola, indoor dining w Italian tiles, kitchenette, BBQ, bathroom; climate controlled wine cellar & wine room; outdoor shower, back garden w private beach access to the beach; water tanks for auto garden irrigation & pool

Proudly Marketed by

Stupendous Lush Italian-Style Jewel on the Beachfront
51 Tristania Drive
Marcus Beach QLD 4573

Further Details

Address 51 Tristania Drive, Marcus Beach
Price SOLD FOR $7.425m
Property Type Residential
Property ID 3621
Category House
Land Area 931 m2
Floor Area 622 m2