Sold

2/3 Jacana StreetPeregian Beach

SOLD FOR $1.295m

2 1 1

Chic Beachside Duplex: 170m to Beach Access & Just Minutes to Peregian Village

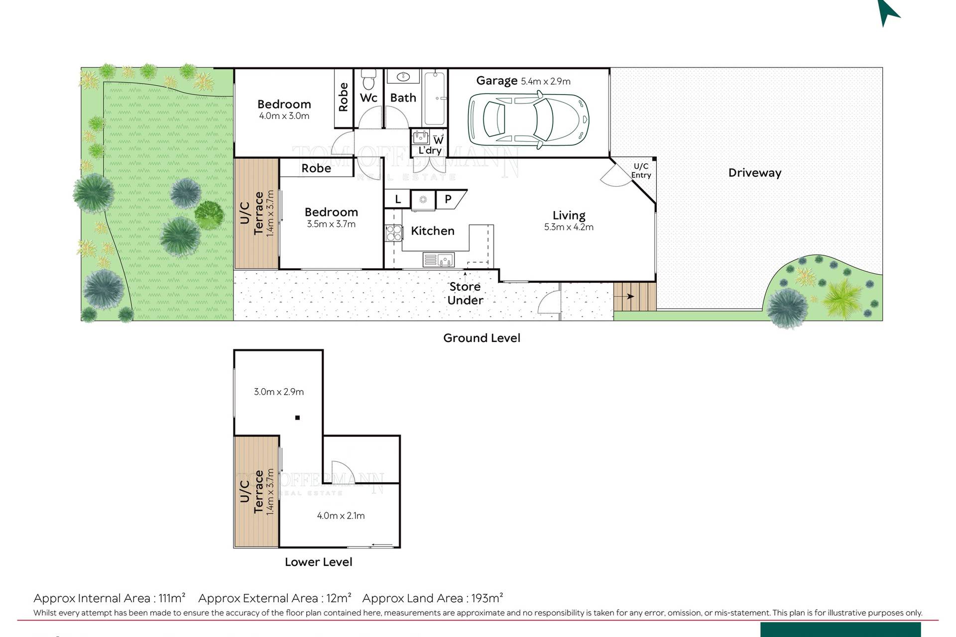
This fully renovated and spacious duplex is just a 170-meter stroll to beach access and only 900 meters from Peregian Beach Village. Offering the perfect balance of comfort and style, the single-level design features two bedrooms and one bathroom, making it an ideal beachside retreat. The master bedroom boasts its own private balcony with a lovely view of Emu Mountain and the surrounding trees, while every window provides a peaceful leafy outlook.

Inside, you'll find a soft neutral colour palette, plush woollen carpets, high ceilings, and timber floors, creating an elegant and airy atmosphere. The open living spaces flow seamlessly, with the bonus of an additional studio downstairs that could serve as extra storage, work-from-home space, studio, second living area or teenage retreat. This area could also easily be converted into a third bedroom if needed. The bathroom has been completely renovated and offers high ceilings, stylish kit-kat tiles and a bath- shower combination. There is also an internal laundry, conveniently located.

For those with pets, the duplex features a lush, private grassed yard, perfect for outdoor enjoyment and entertaining and you are only 1.2km to the nearest off leash dog beach which is ideal exercise area for your four-footed friend.

There are no body corporate fees to worry about, as the owners just share the insurance. Whether you're looking for a beachside investment, a downsizer, or a stylish weekender, this property offers endless possibilities. The serene views over the Noosa National Park from both the master bedroom balcony and the kitchen window add to the tranquil vibe of this beachside coastal gem.

There is single lock up garage and room for another car off street.

The is so much to love about this home and you are only a hop, skip and jump to the beach!

Proudly Marketed by

Tracy Russell

0413 319 879 Email Me
Chic Beachside Duplex: 170m to Beach Access & Just Minutes to Peregian Village
2/3 Jacana Street
Peregian Beach QLD 4573

Further Details

Address 2/3 Jacana Street, Peregian Beach
Price SOLD FOR $1.295m
Property Type Residential
Property ID 3973
Category Duplex Semi-detached